【中古住宅】秋田市楢山南新町
物件概要
-
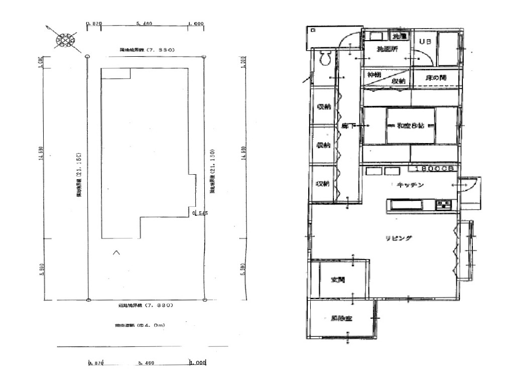
価格 1300万円 所在地 秋田市楢山南新町上丁15-19 交通 JR秋田駅まで徒歩24分 面積 150.67㎡ 築年月 2008年9月
「あしたのいえ」
Home for wonderful tomorrow!
家づくりって、きっと素敵な明日のためにあるんだ。
| 価格 | 1300万円 |
|---|---|
| 所在地 | 秋田市楢山南新町上丁15-19 |
| 用途地域 | 第1種中高層住居専用地域 |
| 建ぺい率(%) | 60% |
| 容積率(%) | 200% |
| 土地面積(m2) | (登記)150.67㎡ 45.57坪 |
| 建物面積(m2) | (登記)73.56㎡ 22.25坪 |
| 土地権利 | 所有権 |
| 土地(地目) | 宅地 |
| 私道負担 | あり |
| 交通 | JR秋田駅まで徒歩24分・JR羽後牛島駅まで徒歩18分 |
| 学区 | 築山小学校まで徒歩5分、南中学校まで徒歩13分 |
| 現況 | 空家 |
| 引渡日 | 相談 |
| 間取り | 1LDK |
| 駐車場 | 2台可 |
| 電気・ガス | オール電化 |
| 取引形態 | 仲介 |
| その他備考 |
